7階 701は現在募集がありません
1フロア募集区画あり

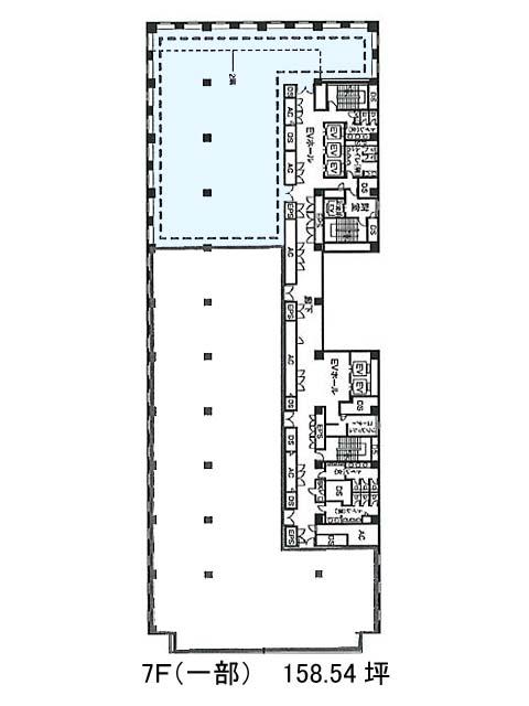
KD南青山ビル 7階 701

前の写真 次の写真

物件概要

物件番号

137-00090-110

物件名

KD南青山ビル

所在地

面積

158.54坪

賃料(共益費含)


入居日

募集終了

保証金

礼金

更新料

償却費

竣工

1995年1月

構造

規模

地上11階/地下2階

トイレ

男女別

空調

セントラル

エレベーター

セキュリティ

駐車場

耐震

新耐震基準

基準階天井高

2630mm

空室延床面積

91.69坪

最寄駅

情報更新日

2025/11/25

KD南青山ビルのテナント募集中区画

階数 面積 賃料(共益費含む) 保証金 入居可能日 検討リスト 詳細
8 91.69坪 応相談(応相談) 応相談 2026年4月上旬
…新着物件

アクセス

KD南青山ビルの物件情報

KD南青山ビル(港区南青山)は外苑前駅(1a番出口)から徒歩5分の賃貸オフィスです。
地上11階建ての物件ということもあり、上層階からの眺望は良好です。外観は全体的にグレーを基調とした色合いで、建物自体が大変大きいため、圧倒的存在感があります。エントランスホールやエレベーターホールは広々としていて、開放感と高級感を感じられます。また周辺には、コンビニや飲食店、郵便局、銀行などがあるため、利便性が高いです。ビル内にはOAフロアが備えられており、トイレは男女別となっております。
KD南青山ビルは外苑前駅(1a番出口)の他に表参道駅(A4番出口)徒歩7分、青山一丁目駅(1番出口)徒歩13分で利用も可能です。

近隣のエリア・駅から探す