3階は現在募集がありません

青山(SEIZAN)ビル 3階

前の写真 次の写真

物件概要

物件番号

142-00201-12

物件名

青山(SEIZAN)ビル

所在地

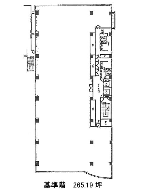
面積

265.19坪

賃料(共益費含)


入居日

募集終了

保証金

礼金

更新料

償却費

竣工

1992年3月

構造

SRC

規模

地上6階/地下1階

トイレ

男女別

空調

個別空調

エレベーター

セキュリティ

駐車場

耐震

新耐震基準

基準階天井高

2600mm

空室延床面積

最寄駅

情報更新日

2024/08/01

青山(SEIZAN)ビルのテナント募集中区画

現在、空室がございません。

アクセス

青山(SEIZAN)ビルの物件情報

青山(SEIZAN)ビル(港区北青山)は外苑前駅(3番出口)から徒歩3分の賃貸オフィスです。
外観は全体的に明るい色合いで、窓がライン状に並んでいるため、統一感があります。エントランスホールやエレベーターホールは清潔感があり、高級感のある仕様となっております。周辺には、コンビニや飲食店、郵便局、銀行などがあるため、利便性が高いです。ビル内にはOAフロアが備えられており、トイレは男女別となっております。セキュリティは機械警備を導入しているため、安心です。また、駐車場設備を備えたビルとなっておりますので、社用車などを利用する際も便利でしょう。
青山(SEIZAN)ビルは外苑前駅(3番出口)の他に表参道駅(A3番出口)徒歩9分、青山一丁目駅(0番出口)徒歩12分で利用も可能です。

近隣のエリア・駅から探す