5階は現在募集がありません
青山(SEIZAN)ビル 5階
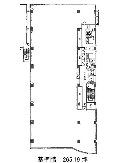
物件概要
青山(SEIZAN)ビルのテナント募集中区画
現在、空室がございません。
アクセス
青山(SEIZAN)ビルの物件情報
青山(SEIZAN)ビル(港区北青山)は外苑前駅(3番出口)から徒歩3分の賃貸オフィスです。外観は全体的に明るい色合いで、窓がライン状に並んでいるため、統一感があります。エントランスホールやエレベーターホールは清潔感があり、高級感のある仕様となっております。周辺には、コンビニや飲食店、郵便局、銀行などがあるため、利便性が高いです。ビル内にはOAフロアが備えられており、トイレは男女別となっております。セキュリティは機械警備を導入しているため、安心です。また、駐車場設備を備えたビルとなっておりますので、社用車などを利用する際も便利でしょう。青山(SEIZAN)ビルは外苑前駅(3番出口)の他に表参道駅(A3番出口)徒歩9分、青山一丁目駅(0番出口)徒歩12分で利用も可能です。

