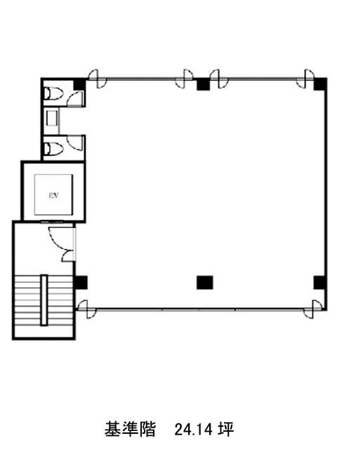
3階は現在募集がありません
麻布台1918ビル 3階
物件概要
麻布台1918ビルのテナント募集中区画
現在、空室がございません。
アクセス
麻布台1918ビルの物件情報
麻布台1918ビル(港区麻布台)は神谷町駅(2番出口)から徒歩5分の賃貸オフィスです。麻布台1918ビルは神谷町駅(2番出口)の他に六本木一丁目駅(2番出口)徒歩9分、赤羽橋駅(赤羽橋口)徒歩10分で利用も可能です。

