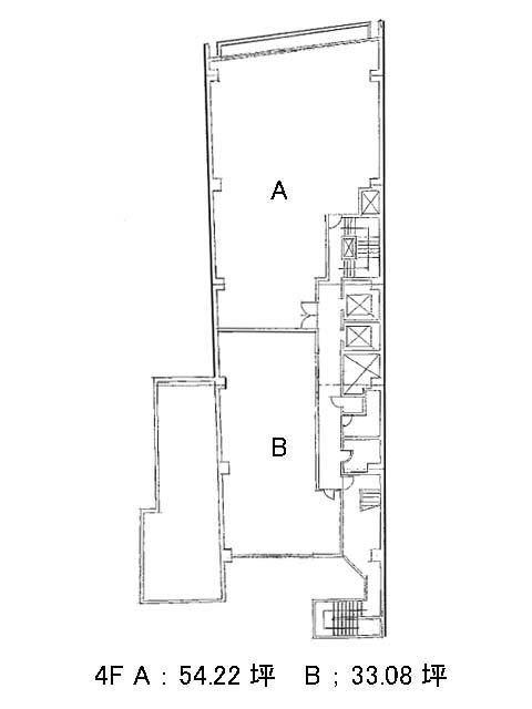
4階 4Bは現在募集がありません
六本木電気ビル 4階 4B
物件概要
六本木電気ビルのテナント募集中区画
現在、空室がございません。
アクセス
六本木電気ビルの物件情報
六本木電気ビル(港区六本木)は六本木駅(3番出口)から徒歩1分の賃貸オフィスです。外観は全体的にグレーを基調とした色合いで、フロアごとにバルコニーが並ぶ、シンプルなデザインです。室内は分割区画となる場合がありますが、どの区画も比較的レイアウトは組みやすいでしょう。ビル内にはOAフロアが備えられており、トイレも男女別となっております。六本木通りに面し、駐車場も完備しているため、車の利用もしやすい環境となっております。ビルの目の前にバス停がありますので、バスを使った移動も便利です。また周辺にはコンビニや飲食店、郵便局などが複数あるため、とても利便性が高いです。六本木電気ビルは六本木駅(3番出口)の他に六本木一丁目駅(出口)徒歩10分、乃木坂駅(3番出口)徒歩10分で利用も可能です。

