2階は現在募集がありません

クロスオフィス六本木 2階

前の写真 次の写真

物件概要

物件番号

147-00464-91

物件名

クロスオフィス六本木

所在地

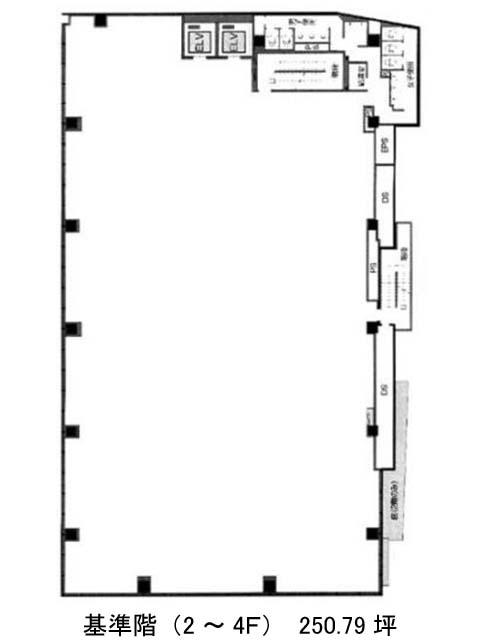
面積

114.00坪

賃料(共益費含)


入居日

募集終了

保証金

礼金

更新料

償却費

竣工

2009年5月

構造

S造

規模

地上6階/地下2階

トイレ

男女別

空調

個別空調

エレベーター

セキュリティ

駐車場

耐震

新耐震基準

基準階天井高

2700mm

空室延床面積

最寄駅

情報更新日

2025/08/08

クロスオフィス六本木のテナント募集中区画

現在、空室がございません。

アクセス

クロスオフィス六本木の物件情報

クロスオフィス六本木(港区六本木)は六本木駅(7番出口)から徒歩2分の賃貸オフィスです。
クロスオフィス六本木は六本木駅(7番出口)の他に乃木坂駅(3番出口)徒歩7分、六本木一丁目駅(出口)徒歩12分で利用も可能です。

近隣のエリア・駅から探す