ONEST元代々木スクエアのテナント募集中区画
| 階数 | 面積 | 賃料(共益費含む) | 保証金 | 入居可能日 | 検討リスト | 詳細 |
|---|---|---|---|---|---|---|
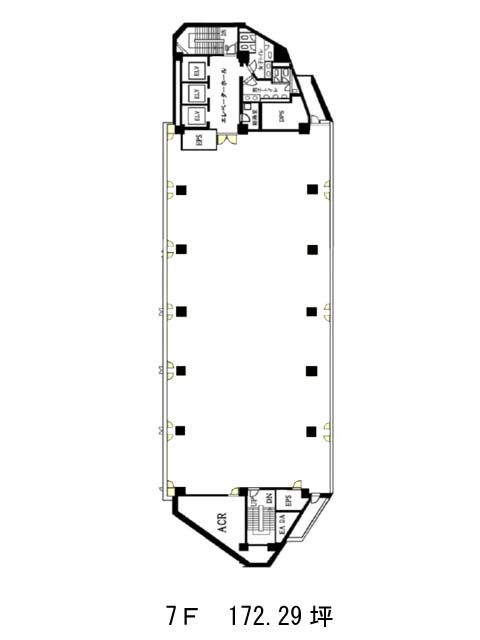
| 6 | 172.52坪 | 3,605,668円/月(20,900円/坪) | 3,933万円 | 即 |
…新着物件
アクセス
ONEST元代々木スクエアの物件情報
ONEST元代々木スクエア(渋谷区元代々木町)は代々木八幡駅(北口改札口)から徒歩3分の賃貸オフィスです。1992年竣工、地上8階地下2階建SRC造の建物です。横長にガラス窓がずらりと並び、すっきりとした外観デザインをしています。信号の側に建ち、ご案内時の目印としてわかりやすいでしょう。フロアの形は特徴的ですが、隅に共用部をまとめており使い勝手が良いでしょう。EV4基・駐車場・セントラル空調・貸室外の男女別トイレ・給湯室といった設備がそろっています。2013年に共用部のリニューアルが済んでおり清潔感があります。ONEST元代々木スクエアは代々木八幡駅(北口改札口)の他に代々木公園駅(1番出口)徒歩5分、代々木上原駅(東口)徒歩9分で利用も可能です。

