8階は現在募集がありません
1フロア募集区画あり

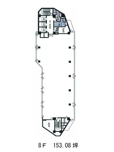
ONEST元代々木スクエア 8階

前の写真 次の写真

物件概要

物件番号

162-00001-210

物件名

ONEST元代々木スクエア

所在地

面積

153.08坪

賃料(共益費含)


入居日

募集終了

保証金

礼金

更新料

償却費

竣工

1992年4月

構造

SRC

規模

地上8階/地下2階

トイレ

男女別

空調

個別空調

エレベーター

セキュリティ

駐車場

耐震

新耐震基準

基準階天井高

2550mm

空室延床面積

172.52坪

最寄駅

情報更新日

2025/11/07

ONEST元代々木スクエアのテナント募集中区画

階数 面積 賃料(共益費含む) 保証金 入居可能日 検討リスト 詳細
6 172.52坪 3,605,668円/月(20,900円/坪) 3,933万円
…新着物件

アクセス

ONEST元代々木スクエアの物件情報

ONEST元代々木スクエア(渋谷区元代々木町)は代々木八幡駅(北口改札口)から徒歩3分の賃貸オフィスです。
1992年竣工、地上8階地下2階建SRC造の建物です。横長にガラス窓がずらりと並び、すっきりとした外観デザインをしています。信号の側に建ち、ご案内時の目印としてわかりやすいでしょう。フロアの形は特徴的ですが、隅に共用部をまとめており使い勝手が良いでしょう。EV4基・駐車場・セントラル空調・貸室外の男女別トイレ・給湯室といった設備がそろっています。2013年に共用部のリニューアルが済んでおり清潔感があります。
ONEST元代々木スクエアは代々木八幡駅(北口改札口)の他に代々木公園駅(1番出口)徒歩5分、代々木上原駅(東口)徒歩9分で利用も可能です。

近隣のエリア・駅から探す