5階 503は現在募集がありません
ビラージュ笹塚Ⅲ 5階 503
物件概要
ビラージュ笹塚Ⅲのテナント募集中区画
現在、空室がございません。
アクセス
ビラージュ笹塚Ⅲの物件情報
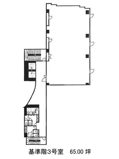
ビラージュ笹塚Ⅲ(渋谷区笹塚)は笹塚駅(出口)から徒歩3分の賃貸オフィスです。笹塚駅南口を出てすぐのところにある、地上6階・地下2階建てのビルです。明るい茶色の御影石調の外壁とグレーのパネルを組み合わせた、高級感のある外観です。部屋の広さは複数あり、コンパクトな部屋で23坪、広い部屋で65坪あります。部屋によって室内の設備が異なりますので、空き状況とともにお問い合わせください。笹塚は大半が住宅街で、昔からのアパートやマンションも多く、一人暮らしをしている若年層の住民も多いです。笹塚駅南口周辺地域の商業化が目覚しく、今後、この地域は更に発展して行く可能性があります。ビラージュ笹塚Ⅲは笹塚駅(出口)の他に代田橋駅(南口)徒歩11分で利用も可能です。

