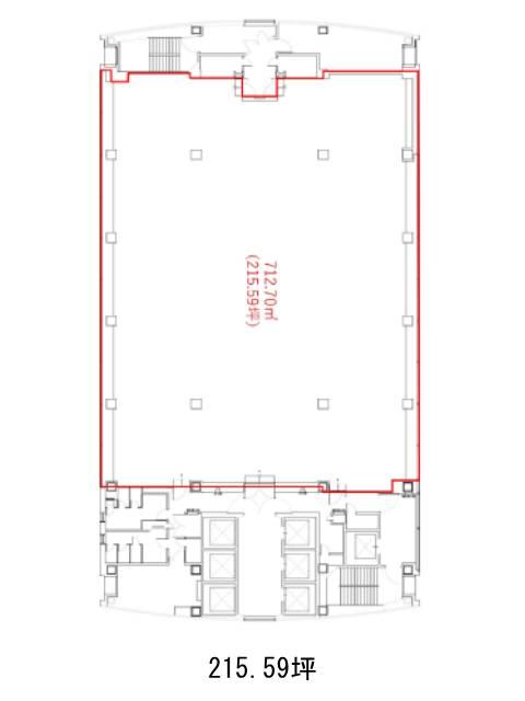
7階は現在募集がありません
Daiwa笹塚タワー 7階
物件概要
Daiwa笹塚タワーのテナント募集中区画
現在、空室がございません。
アクセス
Daiwa笹塚タワーの物件情報
Daiwa笹塚タワー(渋谷区笹塚)は笹塚駅(出口)から徒歩6分の賃貸オフィスです。

