2階は現在募集がありません
渋谷アサヒビル 2階
物件概要
渋谷アサヒビルのテナント募集中区画
現在、空室がございません。
アクセス
渋谷アサヒビルの物件情報
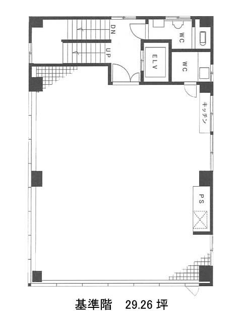
渋谷アサヒビル(渋谷区渋谷)は渋谷駅(C1番出口)から徒歩2分の賃貸オフィスです。明治通り沿いの角地に建つ、8階建てのビルです。茶色のパネルと大きな窓ガラスのコンビの落ち着いた外観です。1階には飲食店が入っています。明治通りにはレンガ敷きの広めの歩道が続いていて、雰囲気の良い立地です。もう一方の通りも同じようなレンガ敷きの歩道になっています。ビルの前が横断歩道になっているので、歩行者からも車からも目につきやすいです。基準階は29.26坪の正方形に近い間取りになっています。柱がそれほど出ていなので、レイアウトしやすいと思います。トイレは室内に一つ、室外に一つと男女別トイレになっています。給湯設備は室内に設置されています。渋谷アサヒビルは渋谷駅(C1番出口)の他に表参道駅(B1番出口)徒歩14分、神泉駅(北口)徒歩15分で利用も可能です。

