8階は現在募集がありません
1フロア募集区画あり

渋谷百瀬ビル 8階

前の写真 次の写真

物件概要

物件番号

166-00136-80

物件名

渋谷百瀬ビル

所在地

面積

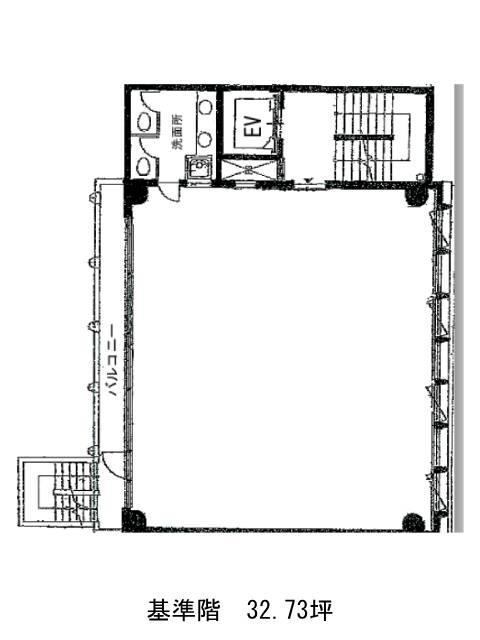
32.73坪

賃料(共益費含)


入居日

募集終了

保証金

礼金

更新料

償却費

竣工

1973年6月

構造

S造

規模

地上10階/地下1階

トイレ

男女共用

空調

個別空調

エレベーター

セキュリティ

駐車場

耐震

旧耐震基準

基準階天井高

2400mm

空室延床面積

32.73坪

最寄駅

情報更新日

2025/11/19

渋谷百瀬ビルのテナント募集中区画

階数 面積 賃料(共益費含む) 保証金 入居可能日 検討リスト 詳細
5 32.73坪 972,079円/月(29,700円/坪) 706万円
…新着物件

アクセス

渋谷百瀬ビルの物件情報

渋谷百瀬ビル(渋谷区渋谷)は渋谷駅(B1番出口)から徒歩2分の賃貸オフィスです。
外観は全体的に暖色系の色合いをしており、とてもスタイリッシュな印象があります。エントランスホールやエレベーターホールには赤いカーペットが敷かれ、高級感を感じられます。室内は柱のない長方形で、明るく現代的な内装になっています。ビル内には個別空調が完備されており、トイレは男女別となっております。エレベーターは1基設置されており、セキュリティは機械警備を導入しているため、安心です。また周辺にはコンビニや飲食店などが複数あるため、ランチも楽しめるでしょう。
渋谷百瀬ビルは渋谷駅(B1番出口)の他に明治神宮前駅(7番出口)徒歩12分、神泉駅(北口)徒歩14分で利用も可能です。

近隣のエリア・駅から探す