5階は現在募集がありません

ヒューリック渋谷2丁目ビル 5階

前の写真 次の写真

物件概要

物件番号

166-00159-40

物件名

ヒューリック渋谷2丁目ビル

所在地

面積

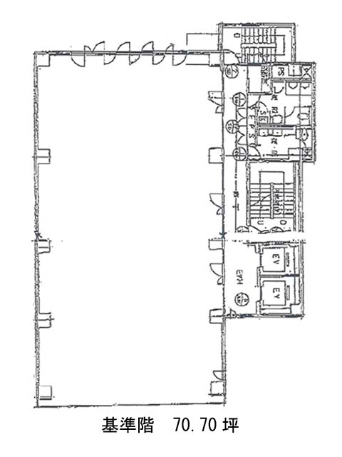
70.70坪

賃料(共益費含)


入居日

募集終了

保証金

礼金

更新料

償却費

竣工

1988年5月

構造

SRC

規模

地上7階/地下1階

トイレ

男女別

空調

個別空調

エレベーター

セキュリティ

駐車場

耐震

新耐震基準

基準階天井高

2450mm

空室延床面積

最寄駅

情報更新日

2023/05/08

ヒューリック渋谷2丁目ビルのテナント募集中区画

現在、空室がございません。

アクセス

ヒューリック渋谷2丁目ビルの物件情報

ヒューリック渋谷2丁目ビル(渋谷区渋谷)は表参道駅(B1番出口)から徒歩7分の賃貸オフィスです。
青山通りを南に3本入ったところにある、地上7階・地下1階建てのビルです。近隣に青山学院大学、大通りを渡ると国連大学とこどもの城跡地がすぐのアカデミックな立地です。交通量のそう多くはない通りに面した落ち着いた環境です。ベージュのタイル貼りの清潔感のある外観です。基準階は70.7坪の長方形の間取りで、床がフリーアクセスなので、レイアウトしやすくなっています。光ファイバーはMDFまで来ています。トイレは共用部に男女別で設置されています。平成29年10月に大規模なリニューアルを行っており、トイレやEVホール等が新しくなりました。

近隣のエリア・駅から探す