7階は現在募集がありません
ヒューリック渋谷2丁目ビル 7階
物件概要
ヒューリック渋谷2丁目ビルのテナント募集中区画
現在、空室がございません。
アクセス
ヒューリック渋谷2丁目ビルの物件情報
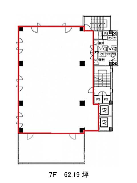
ヒューリック渋谷2丁目ビル(渋谷区渋谷)は表参道駅(B1番出口)から徒歩7分の賃貸オフィスです。青山通りを南に3本入ったところにある、地上7階・地下1階建てのビルです。近隣に青山学院大学、大通りを渡ると国連大学とこどもの城跡地がすぐのアカデミックな立地です。交通量のそう多くはない通りに面した落ち着いた環境です。ベージュのタイル貼りの清潔感のある外観です。基準階は70.7坪の長方形の間取りで、床がフリーアクセスなので、レイアウトしやすくなっています。光ファイバーはMDFまで来ています。トイレは共用部に男女別で設置されています。平成29年10月に大規模なリニューアルを行っており、トイレやEVホール等が新しくなりました。

