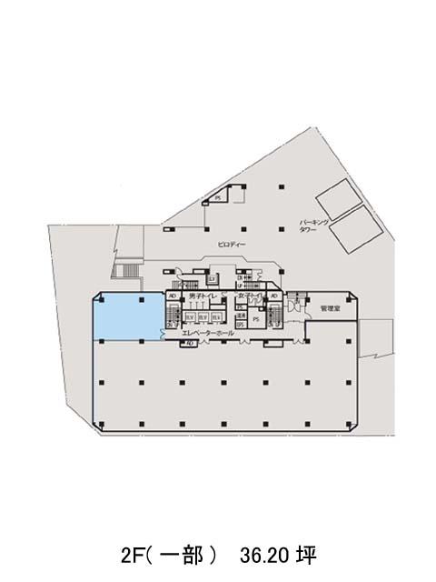
2階は現在募集がありません
東建インターナショナルビル本館 2階
物件概要
東建インターナショナルビル本館のテナント募集中区画
現在、空室がございません。
アクセス
東建インターナショナルビル本館の物件情報
東建インターナショナルビル本館(渋谷区渋谷)は渋谷駅(C1番出口)から徒歩6分の賃貸オフィスです。六本木通り沿いの角地に建つこちらの大型ビルは、白を基調とした外観で、シンプルなデザインながら視認性が高いでしょう。エントランスホールやエレベーターホールは広々としていて、清潔感と開放感を感じられます。ビル内には個別空調が完備されており、トイレも男女別となっております。駐車場も備えられているため、車の利用もしやすい環境となっております。セキュリティは機械警備と有人警備を併用しており、安全性も高いでしょう。また、周辺はオフィス街ですが、近くにコンビニや飲食店などがありますので、ランチに困ることはないでしょう。東建インターナショナルビル本館は渋谷駅(C1番出口)の他に表参道駅(B1番出口)徒歩11分で利用も可能です。

