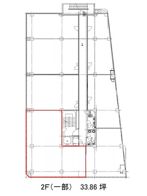
井門美竹ビルのテナント募集中区画
| 階数 | 面積 | 賃料(共益費含む) | 保証金 | 入居可能日 | 検討リスト | 詳細 |
|---|---|---|---|---|---|---|
| 6 | 89.04坪 | 2,448,600円/月(27,500円/坪) | 2,671万円 | 2026年3月上旬 |
…新着物件
アクセス
井門美竹ビルの物件情報
井門美竹ビル(渋谷区渋谷)は渋谷駅(B1番出口)から徒歩5分の賃貸オフィスです。複数の教育機関が並ぶ落ち着いた通りの角地に位置しており、明るいグレーの石張りと窓の縦ラインが格調高い雰囲気を与える外観です。2011年に共用部のリニューアル工事を行い、耐震工事も済ませています。エントランスホールはとても清潔感があり、落ち着いた空間となっております。ビル内には個別空調が完備されており、トイレは男女別となっております。駐車場も完備してあるため、社用車を使う場合も便利です。そしてセキュリティは機械警備を導入しているため、安心です。また周辺にはコンビニや飲食店などが複数あるため、ランチも楽しめるでしょう。井門美竹ビルは渋谷駅(B1番出口)の他に明治神宮前駅(7番出口)徒歩8分、表参道駅(A1番出口)徒歩11分で利用も可能です。

