2階は現在募集がありません
1フロア募集区画あり

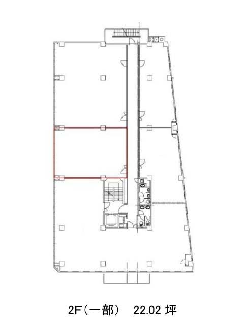
井門美竹ビル 2階

前の写真 次の写真

物件概要

物件番号

166-00024-30

物件名

井門美竹ビル

所在地

面積

22.02坪

賃料(共益費含)


入居日

募集終了

保証金

礼金

更新料

償却費

竣工

1975年3月

構造

RC

規模

地上6階/地下1階

トイレ

男女別

空調

個別空調

エレベーター

セキュリティ

駐車場

耐震

耐震補強済み

基準階天井高

空室延床面積

89.04坪

最寄駅

情報更新日

2025/12/08

井門美竹ビルのテナント募集中区画

階数 面積 賃料(共益費含む) 保証金 入居可能日 検討リスト 詳細
6 89.04坪 2,448,600円/月(27,500円/坪) 2,671万円 2026年3月上旬
…新着物件

アクセス

井門美竹ビルの物件情報

井門美竹ビル(渋谷区渋谷)は渋谷駅(B1番出口)から徒歩5分の賃貸オフィスです。
複数の教育機関が並ぶ落ち着いた通りの角地に位置しており、明るいグレーの石張りと窓の縦ラインが格調高い雰囲気を与える外観です。2011年に共用部のリニューアル工事を行い、耐震工事も済ませています。エントランスホールはとても清潔感があり、落ち着いた空間となっております。ビル内には個別空調が完備されており、トイレは男女別となっております。駐車場も完備してあるため、社用車を使う場合も便利です。そしてセキュリティは機械警備を導入しているため、安心です。また周辺にはコンビニや飲食店などが複数あるため、ランチも楽しめるでしょう。
井門美竹ビルは渋谷駅(B1番出口)の他に明治神宮前駅(7番出口)徒歩8分、表参道駅(A1番出口)徒歩11分で利用も可能です。

近隣のエリア・駅から探す