11階は現在募集がありません
渋谷363清水ビル 11階
物件概要
渋谷363清水ビルのテナント募集中区画
現在、空室がございません。
アクセス
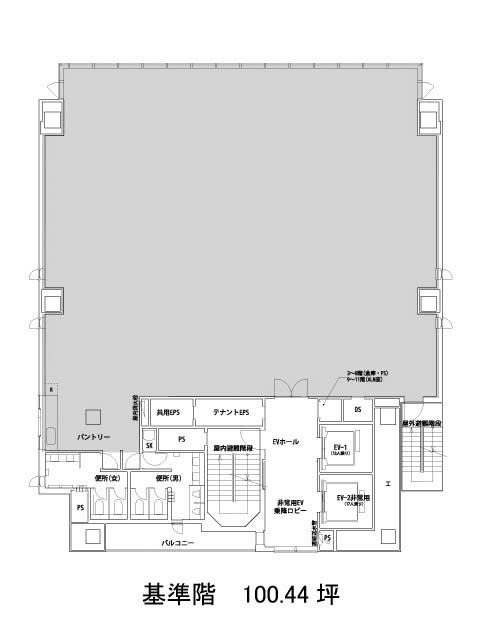
渋谷363清水ビルの物件情報
渋谷363清水ビル(渋谷区渋谷)は渋谷駅(C1番出口)から徒歩3分の賃貸オフィスです。渋谷363清水ビルは渋谷駅(C1番出口)の他に表参道駅(B1番出口)徒歩12分で利用も可能です。

