3階は現在募集がありません
KDC渋谷ビル 3階
物件概要
KDC渋谷ビルのテナント募集中区画
現在、空室がございません。
アクセス
KDC渋谷ビルの物件情報
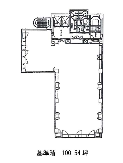
KDC渋谷ビル(渋谷区渋谷)は渋谷駅(C1番出口)から徒歩3分の賃貸オフィスです。1989年竣工、地上8階、地下2階建てのビルです。外観は前面ガラス張りになっているため、とても視認性が高いです。また周辺にはコンビニや飲食店、郵便局などがあるため、利便性も高いです。ビル内にはOAフロアが備えられており、個別空調完備、トイレは男女別です。駐車場も完備してあるため、車の利用がしやすい環境となっております。セキュリティは機械警備を導入していて、耐震性は新耐震基準であるため、安心です。

