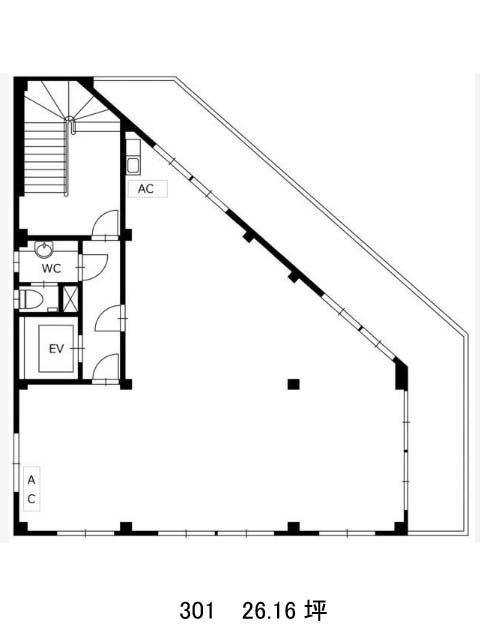
3階 301は現在募集がありません
第2クレド渋谷ビル 3階 301
物件概要
第2クレド渋谷ビルのテナント募集中区画
現在、空室がございません。
アクセス
第2クレド渋谷ビルの物件情報
第2クレド渋谷ビル(渋谷区渋谷)は表参道駅(B1番出口)から徒歩8分の賃貸オフィスです。第2クレド渋谷ビルは表参道駅(B1番出口)の他に渋谷駅(C1番出口)徒歩8分で利用も可能です。

