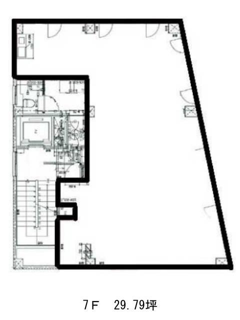
7階は現在募集がありません
渋谷董友ビルannex 7階
物件概要
渋谷董友ビルannexのテナント募集中区画
現在、空室がございません。
アクセス
渋谷董友ビルannexの物件情報
渋谷董友ビルannex(渋谷区渋谷)は渋谷駅(B1番出口)から徒歩4分の賃貸オフィスです。渋谷董友ビルannexは渋谷駅(B1番出口)の他に表参道駅(B2番出口)徒歩10分、明治神宮前駅(7番出口)徒歩14分で利用も可能です。

