4階は現在募集がありません
EーHarajuku 4階
物件概要
EーHarajukuのテナント募集中区画
現在、空室がございません。
アクセス
EーHarajukuの物件情報
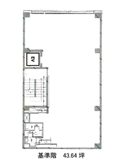
EーHarajuku(渋谷区神宮前)は渋谷駅(B1番出口)から徒歩5分の賃貸オフィスです。明治通り沿いに立地する地上6階建ての鉄筋鉄骨コンクリート造です。1975年の竣工ですが、内装・外装ともにリニューアル工事が済んでおり、きれいな建物です。基準階は約44坪。室内はL字型に近い無柱空間となっていますので、レイアウトの自由度は高いでしょう。ビル内にはエレベーター1基、個別空調が備えられ、トイレは男女別となっております。周辺にはアパレルショップやオフィスビルが建ち並んでいます。コンビニやカフェ、飲食店も多いエリアですので、ランチタイムに活用できるでしょう。EーHarajukuは渋谷駅(B1番出口)の他に明治神宮前駅(7番出口)徒歩6分、原宿駅(東口)徒歩11分で利用も可能です。

