5階は現在募集がありません
JPR原宿ビル 5階
物件概要
JPR原宿ビルのテナント募集中区画
現在、空室がございません。
アクセス
JPR原宿ビルの物件情報
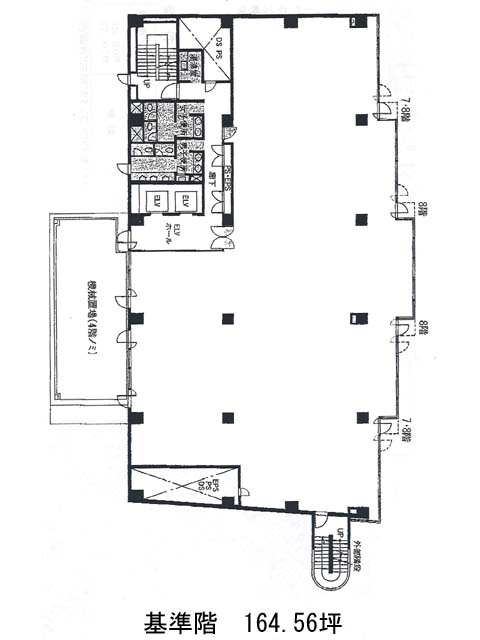
JPR原宿ビル(渋谷区神宮前)は明治神宮前駅(7番出口)から徒歩5分の賃貸オフィスです。こちらの物件は明治通りに面し、渋谷駅と原宿駅の中間にあります。グレーの石張りの上に濃色のガラス張りを合わせた建物で、中央に向けて階段状にせり出たデザインは存在感抜群です。2020年にリニューアル工事を済ませたアーチ状のエントランスを潜ると、木目調ルーバーが並ぶ高級感あふれる空間がエントランスホールへ続いています。室内はL字に近い形です、上層階からは大通り越しに開放的な景色が眺められるでしょう。設備面は、エレベーター2基、個別空調、室外の男女別トイレが備えられています。また機械式駐車場が併設していますので、車でのアクセスも便利です。周辺にはカフェや飲食店が複数営業していますので、休憩時に活用できそうです。JPR原宿ビルは明治神宮前駅(7番出口)の他に渋谷駅(B1番出口)徒歩8分、原宿駅(東口)徒歩10分で利用も可能です。

