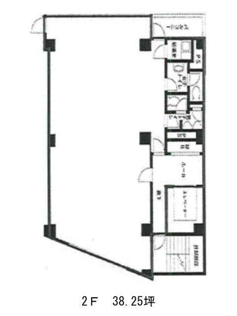
2階は現在募集がありません
神宮前ハッピービル 2階
物件概要
神宮前ハッピービルのテナント募集中区画
現在、空室がございません。
アクセス
神宮前ハッピービルの物件情報
神宮前ハッピービル(渋谷区神宮前)は渋谷駅(B1番出口)から徒歩3分の賃貸オフィスです。1984年竣工、地上10階建ての鉄骨鉄筋コンクリート造です。艶のある褐色の外壁から重厚感を感じる外観です。管理の行き届いたエントランス内には清潔感があり好印象。室内は壁側に一部柱がありますが、整形の執務空間が確保できる間取りですので、比較的レイアウトがしやすいでしょう。ビル内にはエレベーターが1基、個別空調、男女別トイレが備わっており、セキュリティには機械警備を採用しています。また、新耐震基準を満たす安心の構造でもあります。近くには飲食店やハイブランドの店舗が軒を連ねる複合施設「宮下パーク」が立地する注目度の高いエリアです。神宮前ハッピービルは渋谷駅(B1番出口)の他に明治神宮前駅(7番出口)徒歩9分、原宿駅(西口)徒歩12分で利用も可能です。

