1-2Cは現在募集がありません
グリーンガーデン 1-2C
物件概要
グリーンガーデンのテナント募集中区画
現在、空室がございません。
アクセス
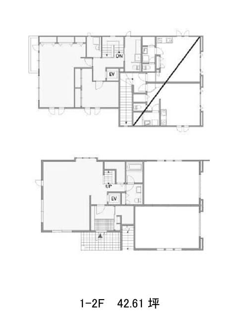
グリーンガーデンの物件情報
グリーンガーデン(渋谷区神宮前)は明治神宮前駅(出口1)から徒歩6分の賃貸オフィスです。2006年竣工のこちらの物件は、柔らかいピンクとグリーンの配色が目を引く、視認性の高い外観です。2階建てには珍しいエレベーター付きですので、荷物の多い時もフロア移動が楽に行えます。その他、ビル内には空調設備や男女別トイレが備えられています。ビルの周辺は穏やかな雰囲気の住宅街で、通りに出ればアパレルショップや飲食店が複数立地していますので、ランチ選びには不自由しないでしょう。また、近くに郵便局がありますので、事務作業等にも便利です。グリーンガーデンは明治神宮前駅(出口1)の他に渋谷駅(B1番出口)徒歩8分、表参道駅(A2番出口)徒歩9分で利用も可能です。

