2階は現在募集がありません

フレーム神南坂 2階

前の写真 次の写真

物件概要

物件番号

173-00101-30

物件名

フレーム神南坂

所在地

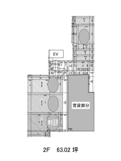
面積

63.02坪

賃料(共益費含)


入居日

募集終了

保証金

礼金

更新料

償却費

竣工

2005年3月

構造

SRC

規模

地上5階/地下3階

トイレ

男女別

空調

個別空調

エレベーター

セキュリティ

駐車場

耐震

新耐震基準

基準階天井高

2180(一部)-2400mm

空室延床面積

最寄駅

情報更新日

2024/05/01

フレーム神南坂のテナント募集中区画

現在、空室がございません。

アクセス

フレーム神南坂の物件情報

フレーム神南坂(渋谷区神南)は渋谷駅(B1番出口)から徒歩4分の賃貸オフィスです。
2005年竣工、公園通りから少し入った角地にある地上5階地下3階建てです。ブラウンの外壁に、大部分がガラスで覆われたスタイリッシュな外観です。ビル内にはハイセンスなアパレルショップやカフェなどが入居しています。設備面はエレベーター1基、個別空調、OAフロア、機械式駐車場も併設されています。また機械警備の採用で、セキュリティ面も安心です。周辺には飲食店が豊富に営業し、区役所や郵便局からも近いため、事務作業等にも便利です。
フレーム神南坂は渋谷駅(B1番出口)の他に明治神宮前駅(7番出口)徒歩12分、原宿駅(西口)徒歩13分で利用も可能です。

近隣のエリア・駅から探す