5階は現在募集がありません
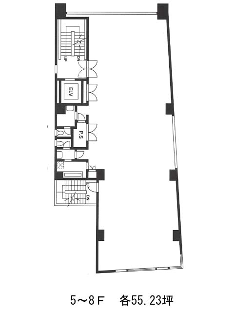
渋谷宮田ビル 5階
物件概要
渋谷宮田ビルのテナント募集中区画
現在、空室がございません。
アクセス
渋谷宮田ビルの物件情報
渋谷宮田ビル(渋谷区神南)は渋谷駅(B1番出口)から徒歩4分の賃貸オフィスです。渋谷宮田ビルは渋谷駅(B1番出口)の他に明治神宮前駅(7番出口)徒歩10分、原宿駅(西口)徒歩11分で利用も可能です。

