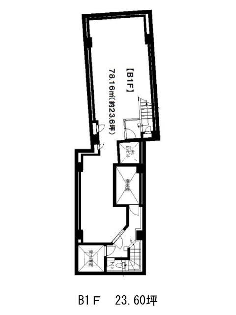
地下1階は現在募集がありません
KIビル 地下1階
物件概要
KIビルのテナント募集中区画
現在、空室がございません。
アクセス
KIビルの物件情報
KIビル(渋谷区東)は恵比寿駅(2番出口)から徒歩5分の賃貸オフィスです。KIビルは恵比寿駅(2番出口)の他に代官山駅(東口)徒歩9分、渋谷駅(新南口)徒歩11分で利用も可能です。

