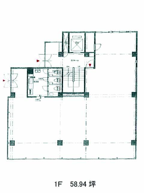
1階は現在募集がありません
キタ・ビルデンス 1階
物件概要
キタ・ビルデンスのテナント募集中区画
現在、空室がございません。
アクセス
キタ・ビルデンスの物件情報
キタ・ビルデンス(渋谷区東)は渋谷駅(C1番出口)から徒歩8分の賃貸オフィスです。SRC造地上5階地下1階建、1974年竣工のビルです。階段状の構造をしており、上層階に向けてすっきりとした外観をしています。共用部は暖色系でまとめられ温かみのある内装をしています。EV1基・男女別トイレ・機械警備・個別空調・タイルカーペットといった設備仕様をしています。大通りから1本入った道沿いに建ち、周辺は住宅街となります。徒歩圏内にカフェやコンビニが充実しておりランチにご利用頂けるでしょう。キタ・ビルデンスは渋谷駅(C1番出口)の他に表参道駅(B1番出口)徒歩12分で利用も可能です。

