Sreed EBISU +Lのテナント募集中区画
| 階数 | 面積 | 賃料(共益費含む) | 保証金 | 入居可能日 | 検討リスト | 詳細 |
|---|---|---|---|---|---|---|
| 2 | 56.58坪 | 応相談(応相談) | 応相談 | 2026年3月中旬 |
…新着物件
アクセス
Sreed EBISU +Lの物件情報
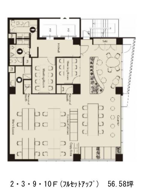
Sreed EBISU +L(渋谷区東)は恵比寿駅(2番出口)から徒歩4分の賃貸オフィスです。外観は縦に伸びる立体的なガラス面と、水平に流れるバルコニーの直線美が組み合わさった造形で、スタイリッシュかつ上質な存在感を放っています。
基準階は約55坪の整形区画で、窓面が大きく設計されており、室内規模以上に開放感があり採光性も期待できそうです。執務エリアは柱が壁際にまとめられ、レイアウトの自由度を高めています。
給湯室は室内に、トイレは男女別で共用部に設置されており、社内外を問わず気兼ねなく使える配置も嬉しいポイントです。さらに、エレベーターは2基設置されており、この規模のビルとしては非常にゆとりある仕様。上下階の移動もストレスなく行えます。
フロアへの動線はエレベーターホールを経由する設計で、来訪者の導線が明確になると同時に、社内のセキュリティ管理にも配慮された構成です。セキュリティ面では、顔認証や交通系ICカードによる入退室管理システムを導入しており、先進的かつスマートな入館管理が可能。1フロア1テナントでの利用を想定しており、プライバシーと専有性も確保されています。Sreed EBISU +Lは恵比寿駅(2番出口)の他に代官山駅(東口)徒歩8分で利用も可能です。

