3階は現在募集がありません
メディアパーク八島ビル 3階
物件概要
メディアパーク八島ビルのテナント募集中区画
現在、空室がございません。
アクセス
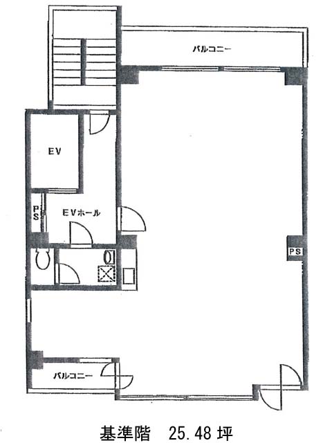
メディアパーク八島ビルの物件情報
メディアパーク八島ビル(渋谷区東)は渋谷駅(新南口)から徒歩8分の賃貸オフィスです。メディアパーク八島ビルは渋谷駅(新南口)の他に恵比寿駅(2番出口)徒歩12分、代官山駅(北口)徒歩12分で利用も可能です。

