3階 301は現在募集がありません
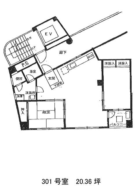
タワーホームズ氷川 3階 301
物件概要
タワーホームズ氷川のテナント募集中区画
現在、空室がございません。
アクセス
タワーホームズ氷川の物件情報
タワーホームズ氷川(渋谷区東)は渋谷駅(新南口)から徒歩9分の賃貸オフィスです。タワーホームズ氷川は渋谷駅(新南口)の他に恵比寿駅(2番出口)徒歩11分、代官山駅(北口)徒歩13分で利用も可能です。

