1階 102は現在募集がありません
Flos幡ヶ谷 1階 102
物件概要
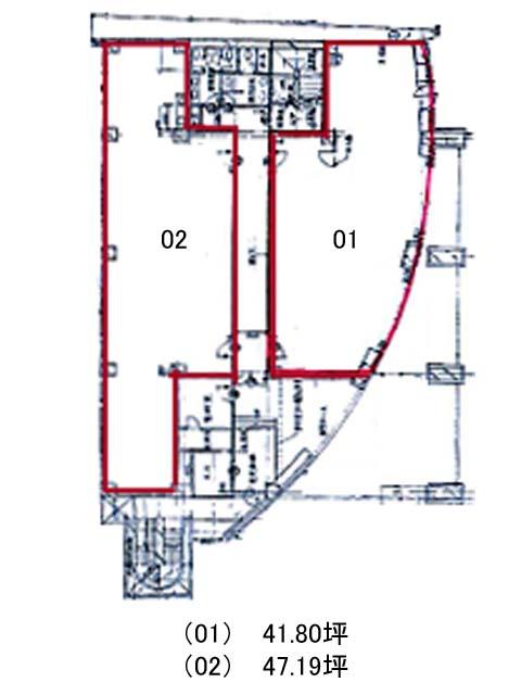
Flos幡ヶ谷のテナント募集中区画
現在、空室がございません。
アクセス
Flos幡ヶ谷の物件情報
Flos幡ヶ谷(渋谷区幡ヶ谷)は幡ヶ谷駅(北口)から徒歩4分の賃貸オフィスです。Flos幡ヶ谷は幡ヶ谷駅(北口)の他に笹塚駅(出口)徒歩10分で利用も可能です。

