2階 203は現在募集がありません
江戸川橋杉原ビル 2階 203
物件概要
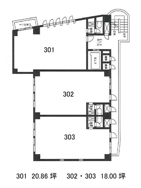
江戸川橋杉原ビルのテナント募集中区画
現在、空室がございません。
アクセス
江戸川橋杉原ビルの物件情報
江戸川橋杉原ビル(新宿区山吹町)は江戸川橋駅(1b番出口)から徒歩3分の賃貸オフィスです。江戸川橋杉原ビルは江戸川橋駅(1b番出口)の他に神楽坂駅(2番出口)徒歩11分、早稲田駅(1番出口)徒歩14分で利用も可能です。

