9階 902は現在募集がありません
アクロポリス東京 9階 902
物件概要
アクロポリス東京のテナント募集中区画
現在、空室がございません。
アクセス
アクロポリス東京の物件情報
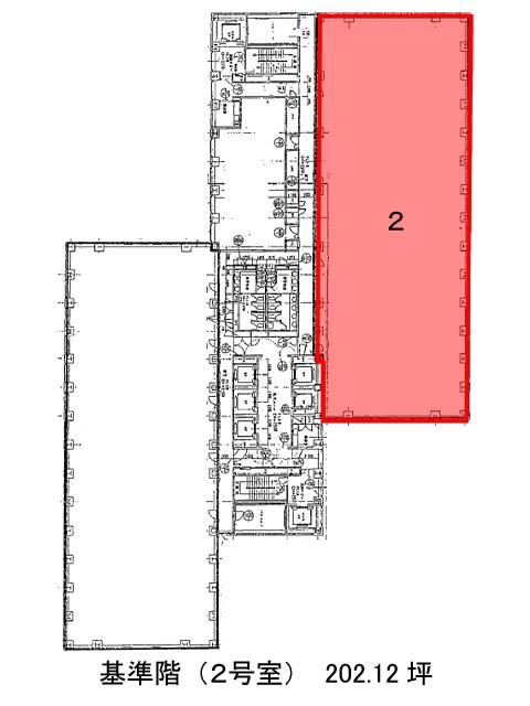
アクロポリス東京(新宿区新小川町)は飯田橋駅(C1番出口)から徒歩9分の賃貸オフィスです。地下3階地上10階建てのこちらの物件は、駅の北側、目白通りに面しています。外観はグレーの石張りで、重厚感のあるデザインです。エントランスに続く階段は吹き抜けの大空間となっており、どこか荘厳な雰囲気が漂います。室内は無柱の整形オフィスですので、レイアウト等に使い勝手が良いでしょう。また、窓が多いので自然光がしっかり入ります。ビル内にはエレベーターが7基設置されていますので、混み合う時間帯も快適に行き来が出来そうです。その他の設備としましては、OAフロア、個別空調、男女別トイレ、機械式駐車場が備わっています。また、有人警備と機械警備の併用で、セキュリティ面も安心です。アクロポリス東京は飯田橋駅(C1番出口)の他に江戸川橋駅(4番出口)徒歩11分、後楽園駅(1番出口)徒歩12分で利用も可能です。

