3階は現在募集がありません
セイキ第1ビル 3階
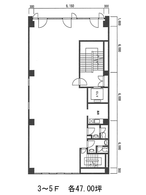
物件概要
セイキ第1ビルのテナント募集中区画
現在、空室がございません。
アクセス
セイキ第1ビルの物件情報
セイキ第1ビル(千代田区外神田)は末広町駅(2番出口)から徒歩2分の賃貸オフィスです。
セイキ第1ビルは末広町駅(2番出口)の他に上野広小路駅(A1番出口)徒歩5分、湯島駅(6番出口)徒歩5分で利用も可能です。

