5階は現在募集がありません
秋葉原三和東洋ビル 5階
物件概要
秋葉原三和東洋ビルのテナント募集中区画
現在、空室がございません。
アクセス
秋葉原三和東洋ビルの物件情報
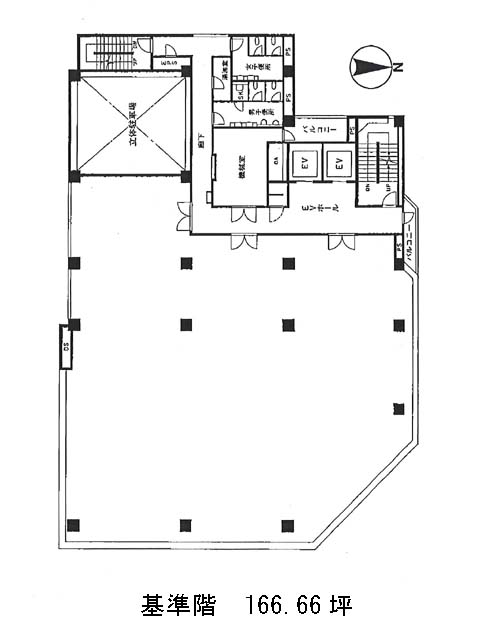
秋葉原三和東洋ビル(千代田区外神田)は末広町駅(3番出口)から徒歩1分の賃貸オフィスです。1985年竣工。新耐震基準に適合した鉄骨鉄筋コンクリート造・地上8階、地下1階建てのオフィスビルです。中央通りと蔵前橋通りの交差点の角地に位置しており視認性も抜群です。貸室内は窓が多く、太陽光が良く入ってくるので採光良好、フリーアクセス床となっているので、配線しやすいフロアです。トイレは男女別の設置となっており、エレベーターは2基設置されています。1階には銀行があり、徒歩圏内にコンビニや飲食店も点在している為利便性が高いでしょう。秋葉原三和東洋ビルは末広町駅(3番出口)の他に湯島駅(6番出口)徒歩7分、上野広小路駅(A1番出口)徒歩7分で利用も可能です。

