秋葉原HFビルのテナント募集中区画
| 階数 | 面積 | 賃料(共益費含む) | 保証金 | 入居可能日 | 検討リスト | 詳細 |
|---|---|---|---|---|---|---|
| 5 | 146.00坪 | 応相談(応相談) | 応相談 | 即 |
…新着物件
アクセス
秋葉原HFビルの物件情報
秋葉原HFビル(千代田区外神田)は末広町駅(3番出口)から徒歩3分の賃貸オフィスです。秋葉原エリアの利便性をしっかり享受できる立地に構える、ベージュトーンの外観が印象的なオフィスビル。パネル×タイルの組み合わせによる重厚感ある佇まいで、1階には物販系店舗が入居しており、視認性を高めています。
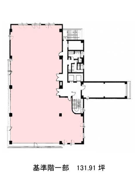
基準階は最大約146坪。共用部の廊下を挟む構成のため、執務スペースと来客対応ゾーンを自然に分けやすく、レイアウトの幅が広がります。複数テナント利用時にも、エリアを明確に使い分けられる点はメリットといえるでしょう。
また、エントランスやエレベーターホールは管理が行き届いており、清潔感と落ち着きのある雰囲気。訪問者にも安心感を与えられる環境です。周囲には飲食店や店舗も多く、日常的な利便性の高さも働くうえで嬉しいポイントですね。秋葉原HFビルは末広町駅(3番出口)の他に秋葉原駅(電気街口)徒歩6分、湯島駅(6番出口)徒歩9分で利用も可能です。

