3階は現在募集がありません
FTK秋葉原 3階
物件概要
FTK秋葉原のテナント募集中区画
現在、空室がございません。
アクセス
FTK秋葉原の物件情報
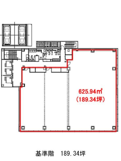
FTK秋葉原(千代田区外神田)は末広町駅(1番出口)から徒歩4分の賃貸オフィスです。2024年8月竣工、地上10階建てS造の新築ビルです。大きなガラス窓に覆われた外壁に、明るいブラウンのデザインがアクセントになっています。基準階面積は189.34坪と、大規模な事務所をお探しの会社に良いでしょう。EV3基・OAフロア・駐車場(32台…平置荷捌き2台、機械式大型ハイルーフ車30台)貸室外の男女別トイレ・個別空調・機械警備といった充実の設備仕様をしています。周辺には、コンビニが複数ありランチにご利用頂けるでしょう。FTK秋葉原は末広町駅(1番出口)の他に秋葉原駅(電気街口)徒歩5分、神田駅(6番出口)徒歩9分で利用も可能です。

