8階は現在募集がありません

FTK秋葉原 8階

前の写真 次の写真

物件概要

物件番号

381-00516-8

物件名

FTK秋葉原

所在地

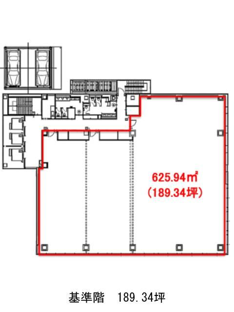
面積

189.34坪

賃料(共益費含)


入居日

募集終了

保証金

礼金

更新料

償却費

竣工

2024年8月

構造

S造

規模

地上10階

トイレ

男女別

空調

個別空調

エレベーター

セキュリティ

駐車場

耐震

新耐震基準

基準階天井高

2800mm

空室延床面積

最寄駅

情報更新日

2025/02/25

FTK秋葉原のテナント募集中区画

現在、空室がございません。

アクセス

FTK秋葉原の物件情報

FTK秋葉原(千代田区外神田)は末広町駅(1番出口)から徒歩4分の賃貸オフィスです。
2024年8月竣工、地上10階建てS造の新築ビルです。大きなガラス窓に覆われた外壁に、明るいブラウンのデザインがアクセントになっています。基準階面積は189.34坪と、大規模な事務所をお探しの会社に良いでしょう。EV3基・OAフロア・駐車場(32台…平置荷捌き2台、機械式大型ハイルーフ車30台)貸室外の男女別トイレ・個別空調・機械警備といった充実の設備仕様をしています。周辺には、コンビニが複数ありランチにご利用頂けるでしょう。
FTK秋葉原は末広町駅(1番出口)の他に秋葉原駅(電気街口)徒歩5分、神田駅(6番出口)徒歩9分で利用も可能です。

近隣のエリア・駅から探す