4階は現在募集がありません
亀松ビル 4階
物件概要
亀松ビルのテナント募集中区画
現在、空室がございません。
アクセス
亀松ビルの物件情報
亀松ビル(千代田区外神田)は末広町駅(1番出口)から徒歩2分の賃貸オフィスです。外神田エリアで存在感を放つこちらのオフィスビル。最寄り駅の出口からは直線至近でアクセスが可能。また、大通りに面した角地に立地しており、視認性の高さは申し分ありません。
外観は全面ガラス張りで、上層階の一部にはテラスのようなスペースが覗くユニークな設計。洗練された印象を与えるだけでなく、周辺でもひときわ目を引くデザインです。
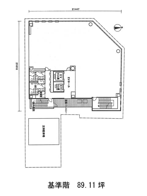
基準階は約89坪。執務スペースは無柱の整形空間で、レイアウトの自由度が高いのが魅力です。水回りは室外に配置されており、貸室内をすっきりと使える点も嬉しいポイント。天井高は2800mmと、開放感ある働きやすい空間が確保されています。
ビジネスにおいて「立地・見た目・使いやすさ」を重視する企業にとって、検討に値する1棟です。亀松ビルは末広町駅(1番出口)の他に秋葉原駅(電気街口)徒歩6分、上野広小路駅(A1番出口)徒歩8分で利用も可能です。

