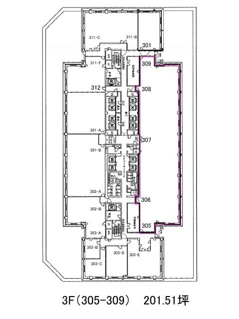
3階 305-309は現在募集がありません
丸の内郵船ビル 3階 305-309
物件概要
丸の内郵船ビルのテナント募集中区画
現在、空室がございません。
アクセス
丸の内郵船ビルの物件情報
丸の内郵船ビル(千代田区丸の内)は二重橋前駅(7番出口)から徒歩1分の賃貸オフィスです。
1978年竣工、2009年に大規模リニューアルを完了した地上16階建てです。皇居内堀に面する日比谷通りと行幸通りの交差点角地に位置しています。白い石調の外観からは高級感が漂います。オフィスフロアは中央の共有スペースを囲む形で、分割区画に対応しています。ビル内にエレベーターは14基設置され、その他OAフロア、光ファイバー、男女別トイレなどを備えています。また、当物件は耐震補強を済ませており、24時間の有人管理、貸室ごとのオートロックなど、セキュリティ体制も万全です。ビル内にはコンビニがあり、周辺のビルにも飲食店がありますので、ランチに困ることはないでしょう。
丸の内郵船ビルは二重橋前駅(7番出口)の他に大手町駅(D1番出口)徒歩2分、東京駅(4b番出口)徒歩3分で利用も可能です。

