3階 301は現在募集がありません
MIWAビル 3階 301
物件概要
MIWAビルのテナント募集中区画
現在、空室がございません。
アクセス
MIWAビルの物件情報
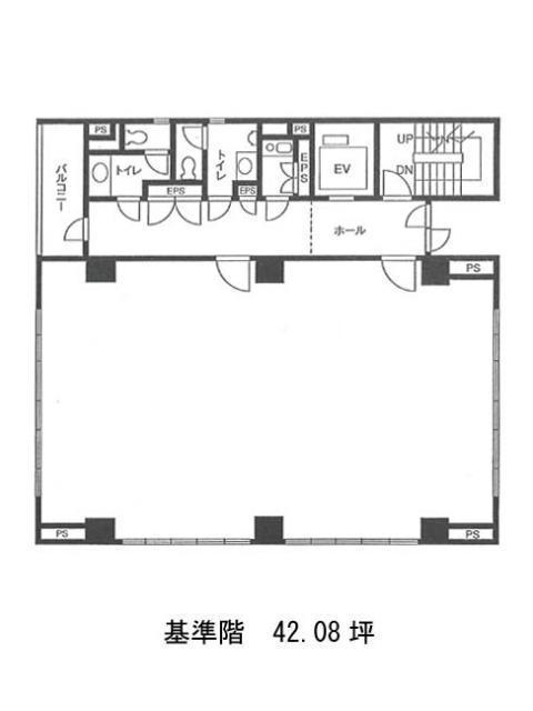
MIWAビル(千代田区神田神保町)は神保町駅(A1番出口)から徒歩2分の賃貸オフィスです。アクセスの便利さがこのビルのポイントでございます。ブラウンを基調とした、落ち着いた外観が印象的です。2005年竣工、新耐震基準を満たした9階建てのオフィスビルとなっております。フロアの形が綺麗な長方形になっており、なおかつ室内に余計な支柱が存在しません。建物の造りに邪魔されず、自由なレイアウトを設計することができるでしょう。エレベータ1基搭載で、男女別のトイレ設置されています。徒歩圏内に複数コンビニエンスストアがございますので、お買い物にも困りません。MIWAビルは神保町駅(A1番出口)の他に九段下駅(6番出口)徒歩6分、竹橋駅(1b番出口)徒歩7分で利用も可能です。

