5階は現在募集がありません
アーク神保町ビル 5階
物件概要
アーク神保町ビルのテナント募集中区画
現在、空室がございません。
アクセス
アーク神保町ビルの物件情報
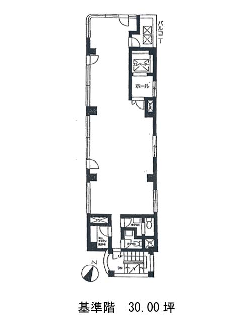
アーク神保町ビル(千代田区神田神保町)は神保町駅(A5番出口)から徒歩5分の賃貸オフィスです。2016年に大規模リニューアル済みなので綺麗な物件です。白山通りから少し入った場所にあるので、比較的静かな立地です。店舗が豊富で、外出時には食事や買い物に困りません。角地のため採光性も良好で、開放的です。トイレは男女別。バルコニーつき。フリーアクセスを備えています。窓が多く、自然光が差し込む明るい室内です。機械警備が導入されているので、セキュリティ面も万全です。アーク神保町ビルは神保町駅(A5番出口)の他に水道橋駅(東口)徒歩7分、御茶ノ水駅(御茶ノ水橋口)徒歩10分で利用も可能です。

