6階は現在募集がありません
千代田共同ビル 6階
物件概要
千代田共同ビルのテナント募集中区画
現在、空室がございません。
アクセス
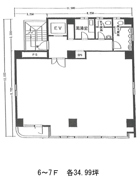
千代田共同ビルの物件情報
千代田共同ビル(千代田区内神田)は神田駅(南口)から徒歩2分の賃貸オフィスです。千代田共同ビルは神田駅(南口)の他に新日本橋駅(2番出口)徒歩6分、大手町駅(A2番出口)徒歩7分で利用も可能です。

