2階は現在募集がありません
小谷ビル(KTNビル) 2階
物件概要
小谷ビル(KTNビル)のテナント募集中区画
現在、空室がございません。
アクセス
小谷ビル(KTNビル)の物件情報
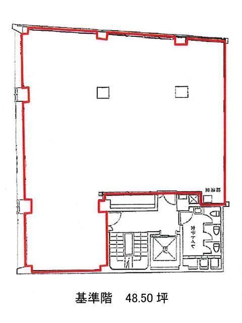
小谷ビル(KTNビル)(千代田区有楽町)は日比谷駅(A2番出口)から徒歩1分の賃貸オフィスです。晴海通りに面していて、角地に立地しているビルです。外観はグレーののパネル貼りでシンプルな物件ですが、すぐ横にJRの線路が走っているので視認性は高いでしょう。給湯室は各階室内にありますが、トイレは共用部にあり、奇数階が男子トイレ、偶数階が女子トイレと隔階にあります。募集時期により、ワンフロアは分割も可能な約50坪です。オフィス入口が2ヶ所あるので色々な使い分けが出来て便利でしょう。周辺はカフェからラーメン屋、居酒屋まで様々な飲食店が豊富にあるのでランチはもちろん、仕事後も楽しめそうです。小谷ビル(KTNビル)は日比谷駅(A2番出口)の他に銀座駅(C1番出口)徒歩2分、有楽町駅(日比谷口)徒歩3分で利用も可能です。

