9階は現在募集がありません
有楽町ビル 9階
物件概要
有楽町ビルのテナント募集中区画
現在、空室がございません。
アクセス
有楽町ビルの物件情報
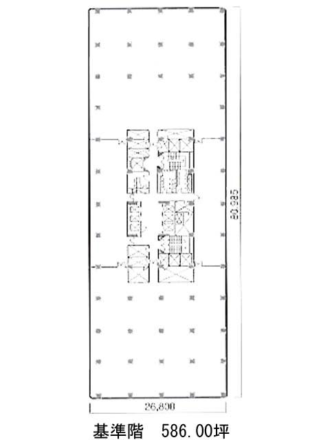
有楽町ビル(千代田区有楽町)は有楽町駅(日比谷口)から徒歩2分の賃貸オフィスです。外観は白い大理石の柱とアルミニウムの低層部とワインレッドをベースにしたガラス張りのカーテンウォール構造のどっしりとしたレトロで存在感のあるつくりになっています。基準階は約580坪の地上11階、地下5階建て、エレベーター7基完備の大型オフィスです。分割貸しにも対応しているので、ご希望の間取りが見つけやすいでしょう。警備は有人管理となっており、24時間体制のためセキュリティ面でも安心です。1966年竣工、お隣の新有楽町ビルも含めて歴史のある建物ですが、残念ながら2023年には両ビルとも建替えによる閉館が決まっています。有楽町ビルは有楽町駅(日比谷口)の他に日比谷駅(A3番出口)徒歩3分、銀座駅(C1番出口)徒歩4分で利用も可能です。

