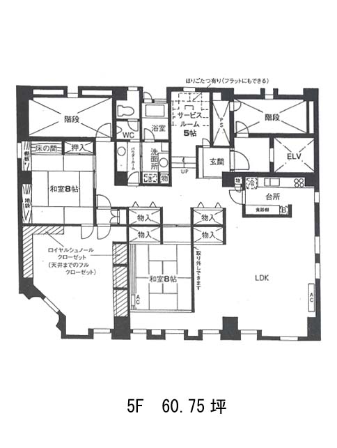
5階は現在募集がありません
山勝ビル 5階
物件概要
山勝ビルのテナント募集中区画
現在、空室がございません。
アクセス
山勝ビルの物件情報
山勝ビル(台東区三筋)は新御徒町駅(A4番出口)から徒歩7分の賃貸オフィスです。山勝ビルは新御徒町駅(A4番出口)の他に蔵前駅(A3番出口)徒歩8分、浅草橋駅(A6番出口)徒歩11分で利用も可能です。

