4階は現在募集がありません
JSビル 4階
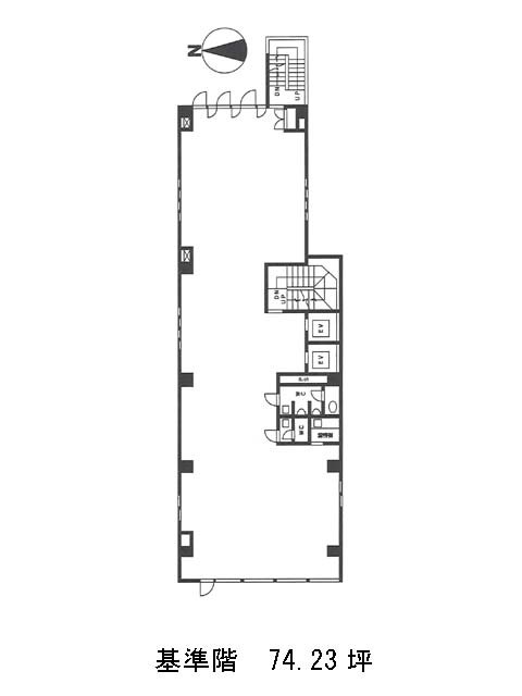
物件概要
JSビルのテナント募集中区画
現在、空室がございません。
アクセス
JSビルの物件情報
JSビル(台東区寿)は田原町駅(2番出口)から徒歩4分の賃貸オフィスです。JSビルは田原町駅(2番出口)の他に蔵前駅(A5番出口)徒歩4分、浅草駅(A1番出口)徒歩8分で利用も可能です。

