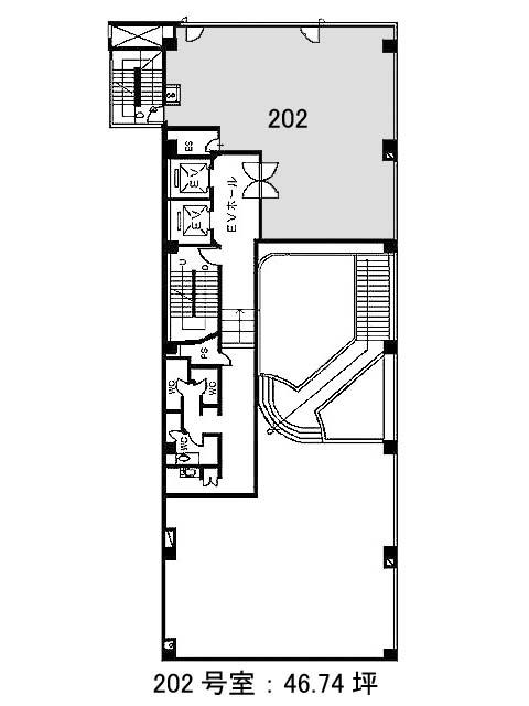
2階 202は現在募集がありません
SPKビルディング 2階 202
物件概要
SPKビルディングのテナント募集中区画
現在、空室がございません。
アクセス
SPKビルディングの物件情報
SPKビルディング(台東区松が谷)は田原町駅(出口)から徒歩5分の賃貸オフィスです。1988年竣工、地上7階、地下1階建ての鉄筋コンクリート造です。かっぱ道具橋通りに面しており、タイル張りで窓ガラスが印象的なビルです。商店街なので人通りが多く賑わいのある周辺環境です。そのため、コンビニや飲食店などには困らないでしょう。基準階は約130坪と広々しています。募集時期により、最大で5区画に分割して募集しております。設備面では、男女別トイレ、機械警備を導入しております。エレベーターは2基ございます。SPKビルディングは田原町駅(出口)の他に浅草駅(A2番出口)徒歩8分、稲荷町駅(2番出口)徒歩9分で利用も可能です。

